Vila Mária
Útulný jednobytový rodinný dom alebo dva krásne bytyNovostavba samostatne stojaceho rodinného domu sa nachádza v najlukratívnejšej zóne hlavného mesta Bratislavy v oblasti Slavína, Horského parku, na miernom južnom svahu Kalvárie s východo-juhozápadnou orientáciou domu s výhľadom na zeleň Horského parku.
Rezidenčný rodinný dom je dispozične navrhnutý ako štvorpodlažná jednobytová vila alebo ako dva samostatné byty, pričom byt na dvoch horných podlažiach má k dispozícii terasu na každom podlaží a byt na dvoch spodných podlažiach, okrem terasy z dvoch strán jedného podlažia a terasy najnižšieho podlažia, má k dispozícii vlastnú súkromnú záhradu.
Rezidenčný rodinný dom má pod celou stavbou čiastočne zapustené podlažie, ďalšie dve podlažia a tretie najvyššie ustúpené podlažie s terasou s výmerou viac ako 90 m² orientovanou do vnútornej južnej záhrady a na zeleň Horského parku.
Vnútornú dispozíciu jednobytového rodinného domu na najspodnejšom podlaží tvorí vnútorné fitnes a wellness zázemie (suchá sauna, parná sauna, vírivka), spoločenský priestor s kuchynským ostrovčekom a výstupom na terasu smerom do vnútornej južnej záhrady s prípravou na vonkajší bazén.
Vyššie podlažie s tromi izbami, každá s vlastným šatníkom a kúpeľňou s WC, slúži jednotlivým členom rodiny, pričom každá izba má svoj vlastný šatník, hygienické zázemie a výstup na terasu. Súčasťou tohto podlažia je samostatný priestor s čajovou kuchynkou a kúpeľňou s WC, ktorý je možné využiť ako televíznu alebo fitnes miestnosť, príp. samostatné ubytovanie napr. pre vychovávateľky, šoféra, kuchárky a pod.
Na prízemí sú navrhnuté reprezentačné spoločenské priestory so šatníkom na odloženie kabátov pre návštevy, s uzavretým priestorom práčovne, kúpeľňou s WC a veľkým obývačkovo-jedálenským priestorom s krbom a otvorenou kuchynskou časťou s kuchynským ostrovčekom s výstupom na terasu s nádherným výhľadom do vnútornej južnej záhrady a na zeleň Horského parku. Najvyššie ustúpené podlažie je navrhnuté s dvomi samostatnými izbami s kúpeľňou s WC.
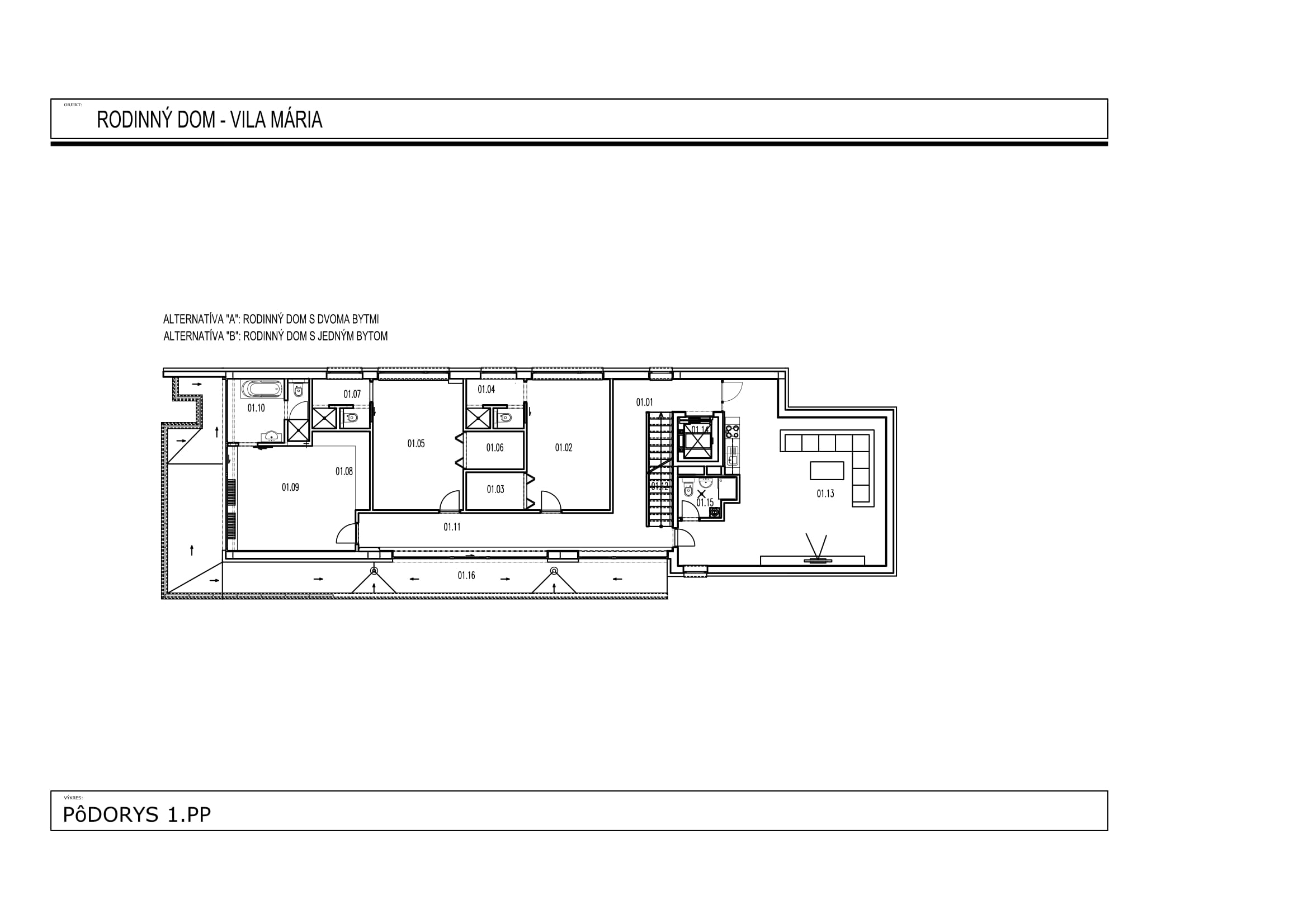
Doslova jednou priečkou je možné celú stavbu rozdeliť na dva byty. Horný menší trojizbový byt s dvomi kúpeľňami, so šatníkom a s práčovňou, umiestnený na prízemí a na najvyššom ustúpenom podlaží, ostáva dispozične totožný s dispozíciou na dvoch horných podlažiach jednobytovej stavby, iba časť prízemia sa uzavrie, čím vznikne vstupný priestor spoločný pre oba byty s vnútorným vstupom do oboch bytov a s výťahom so vstupmi na každé podlažie. Vlastná kotolňa a elektromiestnosť slúžiaca výlučne hornému bytu sú prístupné z priestoru spoločnej garáže.
Spodný byt na dvoch spodných podlažiach má otočenú dispozíciu. Súkromná časť na vyššom podlaží bytu obkolesená z dvoch strán terasou slúžiaca jednotlivým členom rodiny ostáva dispozične totožná s dispozíciou podlažia jednobytovej stavby, s tromi samostatnými izbami, každá s vlastnou kúpeľňou s WC a vlastným šatníkom a výstupom na terasu. Súčasťou tohto podlažia je samostatný priestor s čajovou kuchynkou a kúpeľňou s WC, ktorý je možné využiť ako televíznu alebo fitnes miestnosť, príp. samostatné ubytovanie napr. pre vychovávateľky, šoféra, kuchárky a pod. Najspodnejšie podlažie je dispozične upravené na reprezentačné spoločenské, ale aj rodinné účely s veľkým obývačkovo-jedálenským priestorom s krbom a otvorenou kuchynskou časťou s kuchynským ostrovčekom s výstupom na terasu smerom do vnútornej južnej záhrady, s ďalšou uzavretou kuchyňou, hosťovským WC, kúpeľňou s práčovňou, so skladom a s vlastnou kotolňou slúžiacou výlučne spodnému bytu. K spodnému bytu prináleží súkromná záhrada s výmerou cca 570 m2 s bočným dvorom, bočnou západnou záhradou a z južnej strany so zadným dvorom s prípravou na vonkajší bazén.
Zo severnej strany rezidenčnej vily je vstup z ulice vrátane vjazdu do garáže pre dve vozidlá s možnosťou ďalšieho parkovania na bočnom dvore. Zastavaná plocha objektom je 222 m2. Celková zastavaná plocha rodinného domu spolu s terasami a lodžiami je 750 m2. Celková plocha pozemku je 810 m2 Z vedľajšej Gorazdovej ulice je vytvorený aj tzv. „bezpečnostný“ vstup s možným prístupom k rodinnému domu.
Pôdorysy



